Používame cookies

Súbory cookie a ďalšie technológie sledovania používame na zlepšenie vášho zážitku z prehliadania našich webových stránok, na to, aby sme vám zobrazovali prispôsobený obsah a cielené reklamy, na analýzu návštevnosti našich webových stránok a na pochopenie toho, odkiaľ naši návštevníci prichádzajú. Viac info

 

Predaj novopostaveného obchodného skladu 300 m² pri diaľnici D1 SENEC

Ulica: Diaľničná
Mestská časť: Senec-mesto
Obec: Senec
Okres: Senec
Kraj: Bratislavský kraj
Druh: Priestory
Typ: Predaj
Typ objektu: Priestor pre výrobu
Iné:
495 000 €

Popis nehnuteľnosti

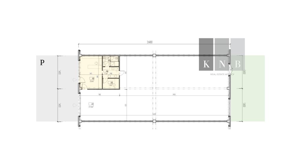
Ponúkame na predaj novopostavený samostatný obchodno-skladový priestor o úžitkovej ploche 300 m2 v objekte, ktorý je umiestnený v dynamicky sa rozvíjajúcej zóne pri diaľnici D1 SENEC. Priestor je jedinečný 3-kombináciou jeho účelu využitia, a to pre obchod, sklad, ako aj kanceláriu. 

➔ Priestory môžu byť využité pre rôzne zamerania biznisu, či už autodielňa, predajňa, sklad, ľahká výroba, e-shop a ďalšie...
➔ Objekt, v ktorom predávame jednotlivé priestory pozostáva zo 7 samostatných priestorov. 

Súčastou každého samostatného priestoru o výmere 300 m2 je:

  • Skladovo-výrobný priestor o podlahovej výmere 250 m2 plus
  • 1x samostatná veľká kancelária s presklenou fasádou a klientským vstupom
  • 1x toaleta s umývadlom so sprchou a výlevkou
  • 1x malá miestnosť, v ktorej je predpríprava na kuchynskú linku
  • 1x samostatná malá miestnosť / sklad
  • Pred priestorom má každý budúci majiteľ jednotky vo vlastníctve 1/1 štyri parkovacie státia
  • Súčasťou vlastníctva 1/1 je aj malý pozemok v zadnej časti jednotky
  • Každý majiteľ jednotky má podiel na pozemku pod celým objektom, ako aj na spoločných prístupových a vnútro-areáloch komunikáciách

Technické parametre priestorov:

  • Celý objekt je postavený z kvalitných stavebných materiálov
  • Vykurovanie a chladenie skladu, ako aj kancelárie je zabezpečené prostredníctvom tepelných čerpadiel
  • Vnútorná výška priestoru skladu je cca 7 m
  • Každý priestor je vybavený elektrickou bránou 3,5 m výška a 4 m šírka, a taktiež preskleným klientským vstupom
  • Podlaha z lešteného betónu s vysokým nosným zaťažením 
  • Kancelária / showroom s celopresklenou fasádou s možnosťou jej rozšírenia do 2. nadzemného podlažia 
  • 4 parkovacie státia priamo pred priestorom
  • Príkon elektrickej energie 40 kW
  • Priestor má samostatne merateľné a regulovateľné médiá

Lokalita:

  • Areál sa nachádza v zóne logistického centra Senec - Prologis a je situovaný po ľavej strane cesty II/503 v smere Senec - diaľnica D1 - Pezinok
  • Komfortné a rýchle napojenie na diaľnicu D1 

Predajná cena:

  • 1650 € bez DPH / m2 / 495 000 € bez DPH - jednotka 300 m2

Dôležitá poznámka:

  • Priestory sú kompletne dokončené, vrátane vonkajších spevnených plôch.
  • Kolaudácia priestorov už prebehla a bola oficiálne schválená kolaudačnou komisiou; priestorom boli pridelené súpisné čísla.
  • V súčasnosti sú dostupné posledné 2 priestory s označením D1 a D5.
  • Vďaka vysokému záujmu sa začala výstavba identického objektu, a to priamo oproti existujúcim priestorom. V tomto objekte vo výstavbe sú dostupné už iba posledné 3 jednotky z celkovo 7, pričom každá má výmeru 300 m2. Obrovskou výhodou týchto priestorov vo výstavbe je, že sa dajú ešte stále prispôsobiť špecifickým požiadaviek budúceho majiteľa (kancelárie, presklené fasády, elektrické brány). Predpokladaný termín dostavby týchto priestorov je na prelome 2. a 3. kvartálu 2026. 
  • ⁠Financovanie je možné využiť prostredníctvom banky VÚB (Všeobecná úverová banka, a.s.), ktorá mimochodom financovala výstavbu celého tohto areálu.

➔ Viac fotografií priestoru nájdete TU.
➔ Video prezentáciu priestoru nájdete TU.
➔ Video prezentáciu z výstavby nového objektu nájdete TU.

V prípade doplňujúcich otázok alebo dohodnutia si termínu obhliadky sme Vám k dispozícii na nižšie uvedených kontaktných údajov:

Ing. Ján Liščák
+421 903 308 186
jan.liscak@knba.sk
www.knba.sk

​© Text a fotografie sú autorským dielom a majetkom spoločnosti KNB Real Estate Agency, s.r.o.

Vlastnosti

Status:
aktívne
Vlastníctvo:
korporácia
Úžitková plocha:
300 m2
Zastavaná plocha:
300 m2
Stav:
novostavba
Celková plocha:
300 m2

Informatívna úverová kalkulačka

Pozrieť na mape

Maklér

Ing. Ján Liščák

Ing. Ján Liščák

maklér

  • English
  • Česky
  • Polskie

Radi Vám poradíme

Podobné nehnuteľnosti