
Street: | Estónska |
---|---|
City/Town: | Bratislava-Vrakuňa |
District: | Bratislava II |
County: | Bratislavský kraj |
Category: | Spaces |
Type: | Sale |
Object type: | Storage areas |
Other: |
KNB Real Estate Agency offers for sale a standalone two-storey commercial building with a net internal usable area of 332,5 m², situated on a 542 m² plot in an excellent location on Estónska Street in Bratislava – Vrakuňa.
➔ This is a multifunctional property designed for commercial use, ideally suited for a combination of retail, storage, and office purposes
➔ The location provides quick access to the Bratislava highway bypass
➔ The property is ideal for companies that need storage, office space, and potentially a showroom all under one roof
Basic information:
The total footprint of the plot including the building is 545 m², comprising:
➔ The building consists of two above-ground floors (ground floor and 1st floor)
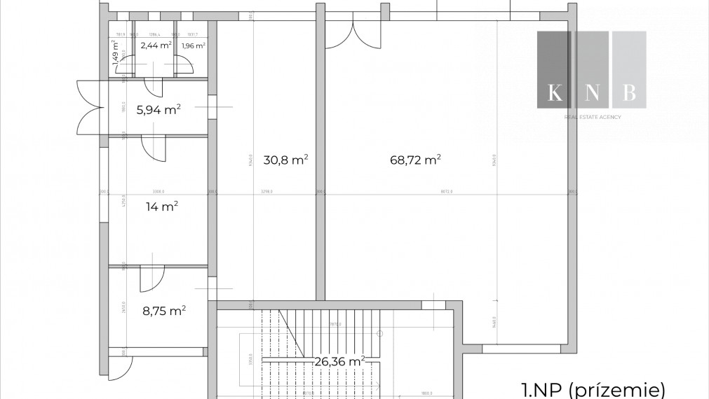
Ground Floor (1st level) with 160,5 m² net usable area consists of:
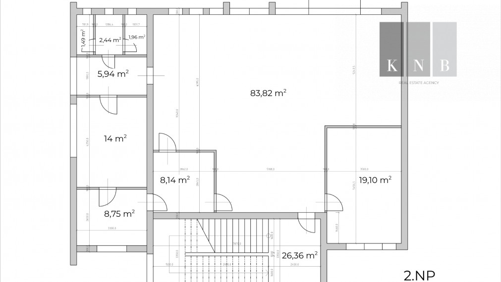
2nd level (1st floor) with 172 m² net usable area consists of:
Additional information:
Services in the building and nearby:
Transport infrastructure:
➔ Floor plans of both levels can be found in the photo gallery
➔ Video presentation available HERE.
➔ Full photo documentation available HERE.
In case of additional questions, or to arrange a viewing appointment, we are at your disposal at the contact details below:
Ing. Ján Liščák
+421 903 308 186
jan.liscak@knba.sk
www.knba.sk© Text and photos are the copyright and property of KNB Real Estate Agency, s.r.o